Architektur
G-Medien GmbH, Lohr a. Main:
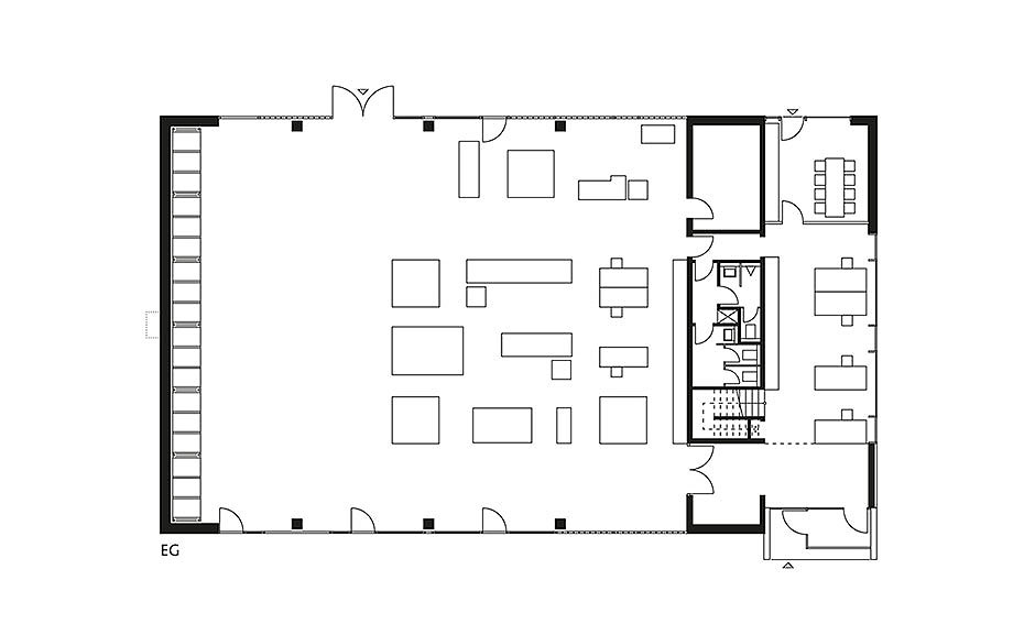
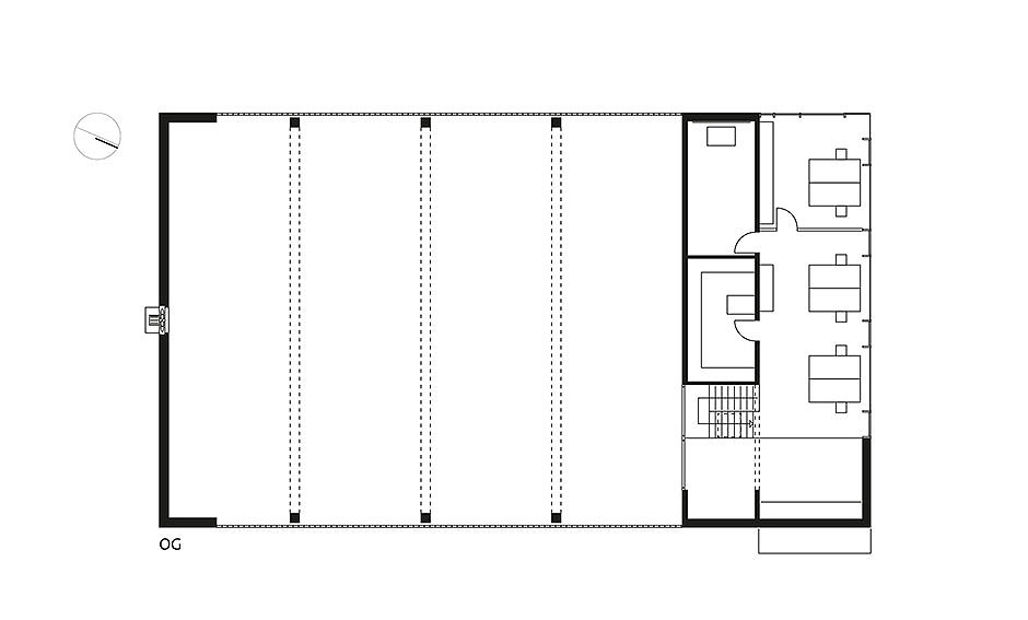
Atelier-, Produktions- und Lagergebäude
(Als Partner im Büro LHVH Architekten mit Frank Lohner und Jens Voss)
Der zweigeschossige Büro-/Ateliertrakt ist für optimale Rechnerarbeit nach Norden orientiert. Produktionshalle und Lager setzen den Kopfbau bündig entlang der Straße fort. Die Fassadenelemente aus Beton, Stahl, Glas und Holz sind flächenbündig angeordnet und um die Gebäudeecken herum grafisch komponiert. Vom Empfang aus bieten sich Blicke auf Betontreppe und Galerie sowie in die Produktion.
Die städtebauliche und konzeptionelle Grundanordnung der Bereiche Atelier, Funktionsspange, Produktion und Lager stammt von mir, darüber hinaus war ich an Entwurfs- und Ausführungsplanung beteiligt.
- Bauherr: G-Medien, Lohr a. Main
- Eckdaten: 30 x 18 x 6 m
- Jahr: 2004
- Leistungen: Beteiligung an Entwurfs- Genehmigungs- und Ausführungsplanung, Präsentationsgrafiken, Gebäudefotos
Einfamilienhaus in Hürth –
Wohnhaus mit Glasfuge
(Als Partner im Büro LHVH Architekten mit Frank Lohner und Jens Voss)
Das zweigeschossige Wohnhaus mit extensiv begrüntem Flachdach gliedert sich in einen mit Fassadenplatten verkleideten Erdgeschossbereich und ein verputztes Obergeschoss mit Lochfassade, das die Individualräume enthält. Zwischen Erdgeschosswand und der Decke darüber befindet sich eine Glasfuge, die nur an wenigen Stellen im Grundriss durch tragende Elemente unterbrochen ist. Das Gebäude vermittelt zwischen der abfallenden Straße und em ebenen Gartenbereich. Zu beiden Seiten sind Garagen angebaut, die in die Fassade integriert sind.
- Jahr: 2004
- Leistungen: Beteiligung an Entwurfs- Genehmigungs- und Ausführungsplanung, Wettbewerbsgrafiken
Wettbewerb Experimentelles Bauen, „Lebenszyklushaus“
zusammen mit Diesing3, Mainz.
1. Preis beim Freispinnerwettbewerb 2008,
Anerkennung beim Designpreis NRW 2008
Ein Gebäudekonzept aus konzentrischen Ringen; die Segmente können beliebig hinzugefügt oder entfernt werden. Es kann sich so den Bedürfnissen seiner Bewohner durch Wachsen und Schrumpfen anpassen. Die genormten Segmente können über eine Webplattform an Besitzer gleicher Gebäude gleichen Typs weitergegeben werden.
- Kunde: Eigener Beitrag mit Diesing3, Mainz
- Jahr: 2008
- Leistungen: Beteiligung am Entwurf, Umsetzung der Photomontagen + Diagramme.
Konzeptionszeichnungen für neue Büros von Diageo Deutschland
Innenraumdarstellungen für den Umzug des Spirituosenherstellers, für Diesing3, Mainz
Die Deutschlandzentrale von Diageo zog 2007 in neue Räumlichkeiten um. Die Raumgestaltung wurde durch Diesing3 geplant und von Mitarbeiterworkshops zur optimalen Gestaltung der Arbeitsumgebung begleitet. Um die Vorschläge und Ideen zu visualisieren, ohne wie etwa bei Renderings bereits zu konkret zu werden, wurden von mir Handzeichnungen angefertigt und computercoloriert.
- Kunde: Diesing3, Mainz
- Jahr: 2007
- Leistungen: Computerkolorierte Handzeichnungen
Wettbewerb Umbau Altes Weinlager Mainz
für Diesing3, Mainz
Beim Wettbewerbsbeitrag des Büros Diesing3 zum „Umbau des Alten Weinlagergebäudes im Zollhafen zum Haus der Kunst-Schaffer“ wurden von mir die Photomontagen beigesteuert.
Das extrem lange Bestandsgebäude lag nur in abschnittsweisen Fotos vor. Es musste zu einem plausiblen Ganzen retuschiert und dann die geplanten Additionen stimmig aber interpretationsoffen eingefügt werden.
- Kunde: Diesing3, Mainz
- Jahr: 2006
- Leistungen: Photomontagen





























